Pirmasens:
5,6% Mietrendiete !!! Die Kapitalanlage der Extraklasse
Objekt-Nr.: 132428359#TcqLs

328A50C5-2323-450B-98D4-0A6...

969CC471-D3F3-4C03-BA12-725...

95023F14-3476-4AAA-90A5-236...

34851E7C-0068-4188-B65D-B29...

5732287B-4B98-4A18-9718-B59...

6D5A4973-92CD-4762-ABC9-1F2...

263FECEE-793B-485A-A968-13E...

AF7A94D6-F7DF-4BBA-81E8-6D6...

A318C19D-4CE3-4945-BED7-569...









Preis:
299.000 €
Wohnfläche ca.:
338,27 m²
Grundstück ca.:
242,70 m²
Zimmeranzahl:
10
Sie suchen eine hochrentable Kapitalanlage? Dann haben wir hier ein Angebot welches Sie vom Hocker reist.
Das Denkmalgeschützte Mehrfamilienhaus mit 4 Einheiten und 3 Etagen, präsentiert sich mit insgesamt 338 qm² Wohnfläche.
bei einer Vermietbarkeit von 5,80€ / qm² beläuft sich die kalt-Miete Jährlich auf 23.524€. Dies entspricht der traumhaften miet-Rendite von 5,6%!
Der Amortisationsfaktor liegt bei c.a 17 Jahren.
3 der 4 Einheiten des Hauses, wurden teil-renoviert, somit ist es für den Käufer lukrativer und der Invest für die Fertigstellung, im Vergleich mit dem Profit nicht hoch.…
Aufteilung:
Die Erdgeschosswohnung hat eine Wohnfläche von insgesamt 90,07 qm² und bietet 2 Schlafzimmer, ein Wohnzimmer, eine lichtdurchflutete Küche sowie ein Badezimmer und ein separates Gäste WC.
Die Erdgeschosswohnung im Hinterhaus hat gegenüber 53,60 qm² Wohnfläche und bietet ein Schlafzimmer, ein Badezimmer und eine offene Küche. Im Hinterhaus wurde bislang nicht renoviert und wird dem Käufer im aktuellen Zustand übergeben.
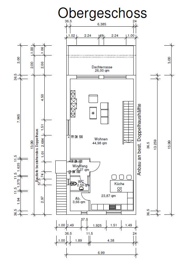
Im Obergeschoss finden Sie 107,80 qm² Wohnfläche vor, die 2 Schlafzimmer, ein Wohnzimmer, eine Küche, ein Badezimmer, ein Gäste WC und ein Balkon auf der Süd, sowie auch ein Balkon auf der Nord-Seite bietet. im ersten Stockwert des Hauses dient ein Zimmer als Durchgangszimmer.
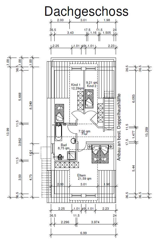
Im Dachgeschoss angelangt haben Sie hier 88,80 qm² Wohnfläche und ebenso 2 Schlafzimmer, ein Wohnzimmer, eine Küche, ein Badezimmer und ein Gäste WC.
Solche Chancen am Markt sind schwer zu finden und schnell vergeben. Rufen Sie mich gleich an um näheres zur Immobilie zu besprechen und gegebenenfalls eine Besichtigung zu vereinbaren.
Haustyp: Mehrfamilienhaus
Etagenanzahl: 3
Provisionspflichtig: ja
Provision: 3,57% inkl. MwSt.
Nutzfläche ca.: 88,02 m²
Anzahl Schlafzimmer: 7
Anzahl Badezimmer: 3
Gäste-WC: ja
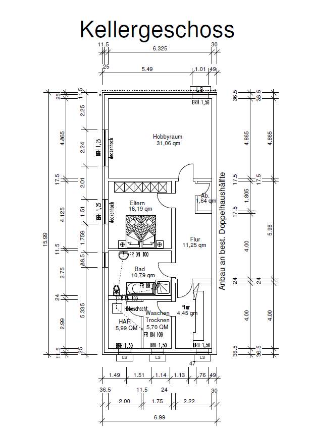
Keller: voll unterkellert
Denkmalschutzobjekt: ja
Qualität der Ausstattung: gehoben
Zustand: renovierungsbedürftig
Im Fall des Kaufs der Immobilie bezahlt der Käufer eine Provision von 3,57% inkl. MwSt. des erzielten Verkaufspreises an DMC Immobilien.
Das könnte Ihnen auch gefallen
Familienglück in grüner Toplage
Restaurant und Maisonette in Bestlage












































